CC_LOGO_OUT-01 2 CC_LOGO_OUT-04
ENFR
START A PROJECT Group 16

MANOR

interior design
CREATORS: AIM GROUP
YEAR: 2023
LOCATION: ENGLAND
AREA: M2
STATUS: IN PROGRESS

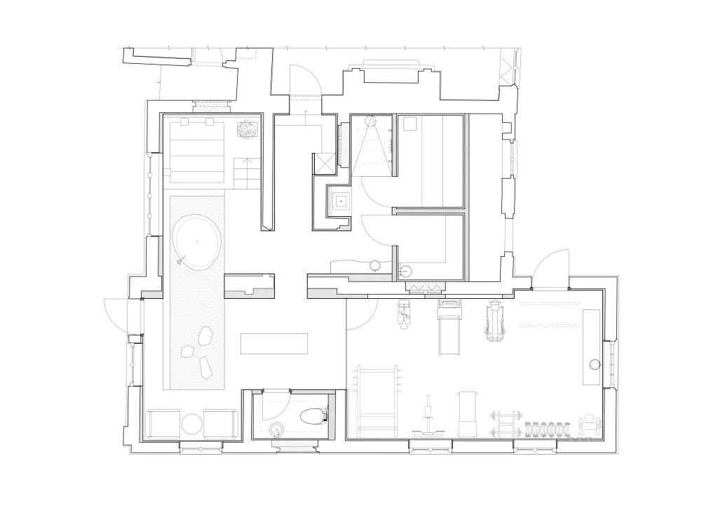
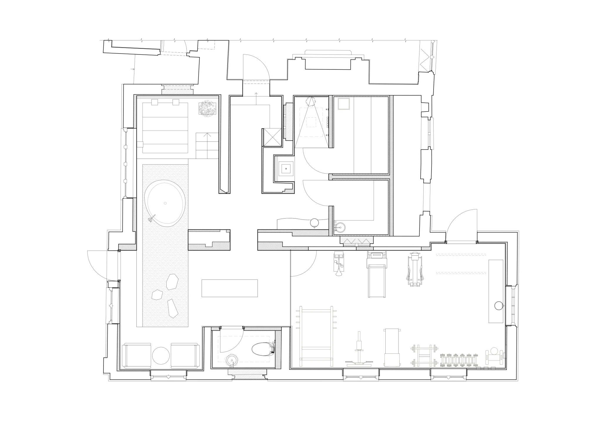
The main idea was laid down by the client - it was a reinterpretation of traditional Japanese interiors and the creation of a modern, minimalist spa and gym.

The primary objective was to expand and merge several different zones, just as water in a river does when it flows through different landscapes. So the spa zone flows into the zen garden, the zen garden into the gym.

The second is a manoeuvre between classic Japanese interiors and the modern lifestyle. Tranquillity and harmony are combined with cutting-edge technology. And the lighting and natural materials draw everything together.

Third, the use of natural materials, which, for all their minimalist presentation, have a multitude of textures and patterns.

This project reflects our approach to residential architecture and interior design, where wellness spaces are seamlessly integrated into private living environments through calm, balance, and material harmony.