CC_LOGO_OUT-01 2 CC_LOGO_OUT-04
ENFR
DÉMARRER UN PROJET Group 16

Malevicha

220216 MAL 2 floor_00007 – Edited
CREATORS: NOVEMBER ARCHITECTS
YEAR: N/A
LOCATION: KYIV, UKRAINE
AREA: 3898.3 M2
STATUS: PROJECT

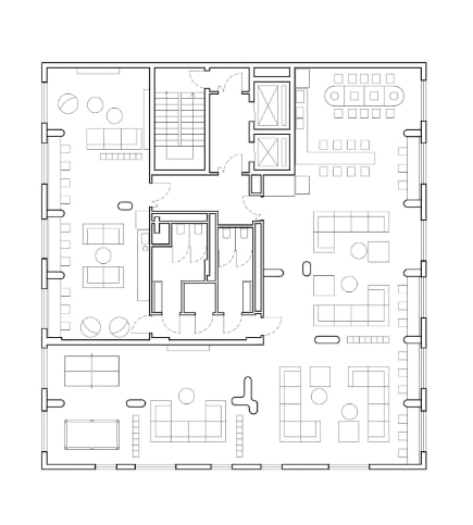
Le rez-de-chaussée commun est un espace public et un élément clé du complexe. Il est destiné aux rencontres, aux échanges et aux loisirs des résidents et de leurs invités.

Son agencement ouvert permet une utilisation flexible de l'espace pour des événements et des réunions de différents formats. L'étage est divisé en zones fonctionnelles pour les loisirs des adultes et des enfants, chacune étant équipée de sa propre cuisine.

L'espace crée un environnement confortable pour l'interaction, la communication quotidienne et les activités communes au sein du complexe.