À propos
Nos services
Tous les services
Design d’intérieur commercial
Design d’intérieur résidentiel
PUBLIC & INSTITUTIONNEL
Architecture
Portefeuille
TOUS LES PROJETS
DESIGN D’INTÉRIEUR COMMERCIAL
DESIGN D’INTÉRIEUR RÉSIDENTIEL
PUBLIC & INSTITUTIONNEL
ARCHITECTURE
Styles
TOUS LES STYLES
MINIMALISME
CONTEMPORAIN
Contact
Blog
EN
FR
DÉMARRER UN PROJET
À propos
Nos services
Tous les services
Design d’intérieur commercial
Design d’intérieur résidentiel
PUBLIC & INSTITUTIONNEL
Architecture
Portefeuille
TOUS LES PROJETS
DESIGN D’INTÉRIEUR COMMERCIAL
DESIGN D’INTÉRIEUR RÉSIDENTIEL
PUBLIC & INSTITUTIONNEL
ARCHITECTURE
Styles
TOUS LES STYLES
MINIMALISME
CONTEMPORAIN
Contact
Blog
Accueil
»
ÉCOLE AMÉRICAINE DE LEYSIN «LAS»
ÉCOLE AMÉRICAINE DE LEYSIN «LAS»
CREATORS:
AIM GROUP
YEAR:
2022
LOCATION:
LEYSIN, SUISSE
AREA:
425.4 M2
STATUS:
COMPLÉTÉ
Visualisation
AVANT / APRÈS
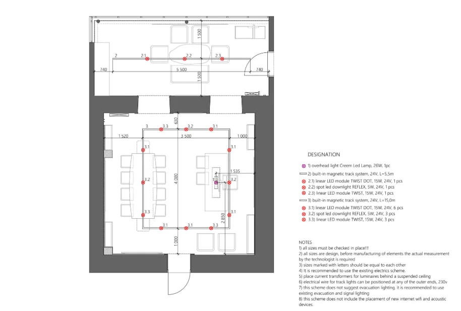
Plans
DESIGNS LES PLUS RÉCENTS
SHOWROOM CLARMA LAUSANNE
AUS LAKEFRONT
LOBBY FORUM
Farm Forel
HUIT SUSHI
Complexe de bien-être de Gstaad