CC_LOGO_OUT-01 2 CC_LOGO_OUT-04
ENFR
DÉMARRER UN PROJET Group 16

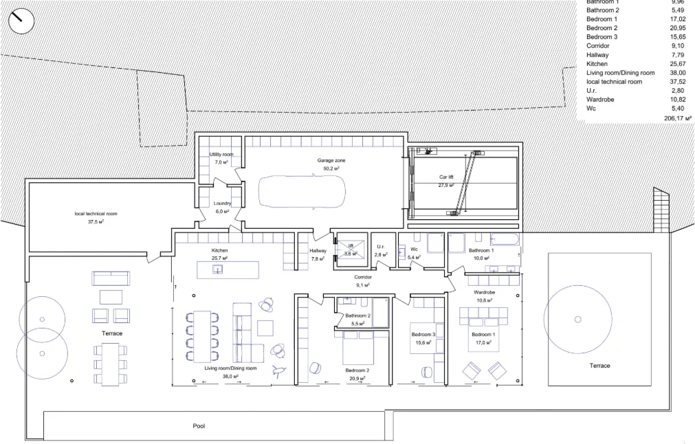
RÉSIDENCE NEVA

Using_the_previously_202602211246
CREATORS: PARAGRAPH
YEAR: 2022
LOCATION: MONTREUX, SUISSE
AREA: 487 M2
STATUS: EN COURS

Ce projet est situé sur une magnifique pente escarpée des rives du lac Léman, avec une vue imprenable sur la montagne Le Grammont. Un architecte local nous a contactés afin de créer un design qui serait apprécié par la communauté locale, car il s'agira du dernier nouveau bâtiment autorisé dans la région.

La vue depuis le lac sur l'ensemble côtier est d'une importance capitale, comme en témoignent les réglementations strictes concernant la surface de la façade du nouveau bâtiment, son volume et son emprise au sol. Il est primordial que le bâtiment n'obstrue pas la vue depuis la route vers le lac. Trois variantes de la solution conceptuelle ont été développées pour répondre à ces questions. Ce projet est un excellent exemple des résultats positifs possibles lorsque l'environnement est pris en compte lors de la construction d'un nouveau bâtiment.

Les structures de la façade de la résidence sont principalement composées de vitrages allant du sol au plafond et d'un deuxième matériau solide, le béton, qui se décline en deux variantes : une surface lisse ou rayée. Cette alternance de verre transparent et de béton permet à la fois de créer un lien avec le paysage environnant et de préserver l'intimité des terrasses de la résidence.

La résidence comprend trois appartements isolés, situés les uns au-dessus des autres. La superficie des appartements varie de 110 m² à 210 m², augmentant du dernier étage au rez-de-chaussée. Un monte-charge est prévu pour le stockage des voitures et permet d'accéder aux trois niveaux. La résidence présente un contour simple et une disposition logique à tous les étages, ainsi qu'une façade laconique. Cette conception s'inscrit dans la lignée du rationalisme suisse, tout en évitant l'impression d'un immeuble d'appartements à la disposition typique.